La variante al piano particolareggiato Vaciglio-Morane approvata all'unanimità 4 giorni fa dalla giunta (alla presenza di tutti gli assessori, Alessandra Filippi compresa, tranne Ludovica Ferrari) tratteggia in modo chiaro l'intero piano e i dettagli relativi alla costruzione delle 550 case.
Cerchiamo di riassumerne i punti principali di un progetto che trasformerà una macroarea verde in un quartiere abitato.
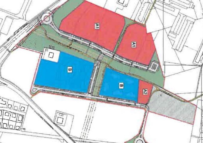
IL COMPARTO

Il progetto prevede la costruzione di 28 palazzine disposte a destra e sinistra di un’asse costituito da un’ampia zona verde affiancata dalla strada di penetrazione, a sua volta collegata alla viabilità esistente attraverso due nuove rotatorie all’intersezione con la Tangenziale Nuova Estense e Via Morane.
Nel dettaglio il comparto di edilizia libera si sviluppa sul lato nord-ovest con una superficie fondiaria di 42.631 metri quadrati per un totale di 306 alloggi. L'area del comparto destinata alla edilizia libera è costituita dal sub-comparto 'A' diviso a sua volta in sei lotti, cinque dei quali (A 1) sul lato ovest del comparto, attigui alla nuova viabilità ed alle aree per infrastrutture per l'urbanizzazione degli insediamenti ed il sesto (A2) nella parte nord tra le aree per urbanizzazioni, nuova viabilità e lotto per intervento di edilizia convenzionata e social housing (B). Parliamo di edifici dai 3 ai 5 piani ciascuno. Il comparto di edilizia convenzionata/social housing si sviluppa sul lato nord-est del comparto con una superficie fondiaria di 33865 metri quadri per un totale di 244 alloggi. L'area del comparto destinata alla edilizia convenzionata/social housing è costituita dal subcomparto B diviso a sua volta in due macrolotti, disposti lungo l'asse di viabilità che delimita il comparto sul lato est, mentre sono delimitati sul lato ovest dal sistema del verde e ciclo pedonale, che divide in due principali settori tutta l'area del comparto stesso. Parliamo di edifici di 4 o 5 piani.
CRONOPROGRAMMA

In base al grafico sopra il cronoprogramma prevede nell'ordine queste edificazioni:

La falda
'Dal punto di vista idrogeologico, le indagini eseguite hanno evidenziato la presenza di una falda superficiale, che in zona si attesta sui 2-3 m di profondità - si legge poi nella Relazione Geologica e Geotecnica - tenuto conto di ciò, non si escludono possibili interferenze tra questa e le porzioni interrate dei futuri edifici e quindi con i relativi scavi nella fase di cantiere. In ogni modo, in fase esecutiva ed in relazione al periodo d’intervento si dovrà valutare la profondità della falda superficiale e quindi sue possibili interferenze con le strutture interrate dei futuri edifici
Area archeologia
Inserito nella variante anche il parere della Soprintendenza per i beni archeologici, che in un documento a firma del soprintendete Filippo Gambari afferma: 'L'area si presenta potenzialmente rilevante da un punto di vista archeologico perchè inserita nella maglia centuriale romana di cui intercetta il decumano. E' possibile la presenza di un paleosuolo a 3-5 metri di profondità'. 'Per questo tutti gli interventi devono essere sottosposti a controlli archeologici in corso d'opera'.
L'ambiente
La Valutazione di sostenibilità ambientale e territoriale del Piano particolareggiato è quantomai complessa. Ecco in sintesi (con le parole usate dai tecnici Alessandro Annovi e Carlo Odorici, dell'Ordine geologi e chimici, le conclusioni sul tipo di ripercussioni che il progetto produrrà sull'ambiente.
Impatti sul suolo e sul sottosuolo. 'Con l’attuazione del Pano Particolareggiato sarà impermeabilizzata parte dell’area del comparto e quindi vi sarà una maggior quantità di acque piovane da smaltire e la diminuzione dell’infiltrazione nel sottosuolo. Questo aumento sarà compensato da opere di laminazione delle piene, mentre la riduzione dell’infiltrazione sarà trascurabile per la presenza nel sottosuolo di sedimenti poco permeabili'.
Impatti sulle acque sotterranee. 'Non sono previsti nuovi utilizzi di acque sotterranee estratte sul posto, per cui non vi sarà consumo diretto di risorse idriche.
Impatti sulle aree verdi presenti. 'L’area della Variante al Piano Particolareggiato è attualmente coltivata è priva di vegetazione arborea. L’attuazione dell’intervento sostituirà parte dell’area agricola con aree verdi di miglior qualità vegetazionale ma inferiore biodiversità, non producendo comunque impatti significativi'.
Impatti sul paesaggio.'L’introduzione di nuove strutture edilizie e infrastrutture non altererà il paesaggio, già compromesso da una forte urbanizzazione sparsa, ma modificherà la penetrazione dell’area agricola nel tessuto urbano, compensata dal mantenimento di un cono visivo che permetterà la percezione del territorio agricolo'.
Emissioni e qualità dell’aria. 'Con l’attuazione del Piano Particolareggiato non ci saranno sorgenti d’emissione puntuale significative, per cui il maggior contributo all’inquinamento dell’aria sarà dovuto al traffico veicolare e agli impianti di riscaldamento, oltre che ai fenomeni di trasporto nell’atmosfera delle emissioni della restante parte della città. Ciò porta a ritenere che la qualità dell’aria all’interno del nuovo comparto potrà essere accettabile, ovvero meno inquinata della media delle aree residenziali presenti nell’area urbana di Modena'.
Rumori. 'Per garantire una miglior qualità ambientale il progetto prevede la realizzazione di una barriera acustica lungo la nuova Estense'.
Giuseppe Leonelli


.jpg)
